Строим дървени сглобяеми къщи с напълно екологични сертифицирани материали! Всяка наша къща е създадена с грижа към природата и комфорта за вашето семейство. Разгледайте разположението на тази прекрасна двуетажна къща!
Двуетажна хижа 193
Двуетажна хижа 193
Спецификации на дървените къщи
-
Материал на стените
Лепени масивни греди (150 × 280 mm). Изсушени до 12–14% влажност, CNC обработка и система „неслягащи греди“.
Покрив
Завършена система с избор от Tondach, Bramac или Lindab (метални керемиди). Включва подпокривни мембрани и вентилация.

Изолация на покрива
Каменна вата ROCKWOOL (20 cm) с алуминиева паробариера за висока енергийна ефективност и пожароустойчивост (клас A1).
Дограма
Rehau Synego (72 mm) или аналогичен висок клас. Троен стъклопакет по избор и хидроизолация на детайлите с ленти ROTHOBLAAS.
-
-
Защита на дървото
Цялостно омасляване с Tikkurila (външно и вътрешно). UV защита и влагоустойчивост с цвят по избор на клиента.
Вътрешно завършване
Дървена интериорна обшивка на стени и тавани със скрита скара за инсталации. Изпълнение с прецизни фуги и детайли.
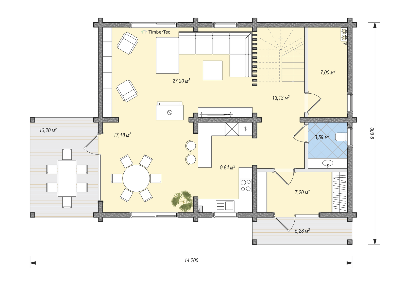
Разпределение на дома
Разпределение на Първия Етаж
-
Просторна всекидневна 27,20 м²
Идеално място за уютни моменти с любимите хора!
-
Трапезария 17,18 м²
С директен излаз към голяма тераса (13,20 м²) за семейни събирания на открито.
-
Модерна кухня 9,84 м²
Съчетаваща удобство и стил.
-
Баня и кабинет 3,59 м² и 7,20 м²
За вашето удобство.
Разпределение на Втория Етаж:
-
Три Спални по 16,00 м²
Осигуряващи спокойствие и уединение за всеки член на семейството.
-
Две Бани 6,28 м² и 5,67 м²
За максимален комфорт и удобство.
-
Две Тераси по 4,00 м²
Перфектни за сутрешното кафе с изглед към природата!

Защо да изберете Log Homes Pro
С Log Homes Pro не просто изграждате къща – изграждате бъдеще.
Нашите домове са:
- Екологични и устойчиви
- Здравословни за живеене
- Енергийно ефективни
- Прекрасна алтернатива на бетонните конструкции
Те се грижат както за природата, така и за вашето благосъстояние.