Начало / Всички проекти / Просторна едноетажна къща

Просторна едноетажна къща

Просторна едноетажна къща

Открийте своята мечтаната къща с LOG HOMES PRO !

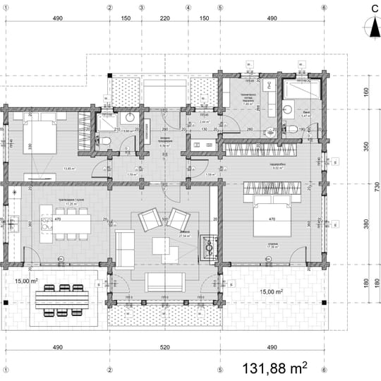
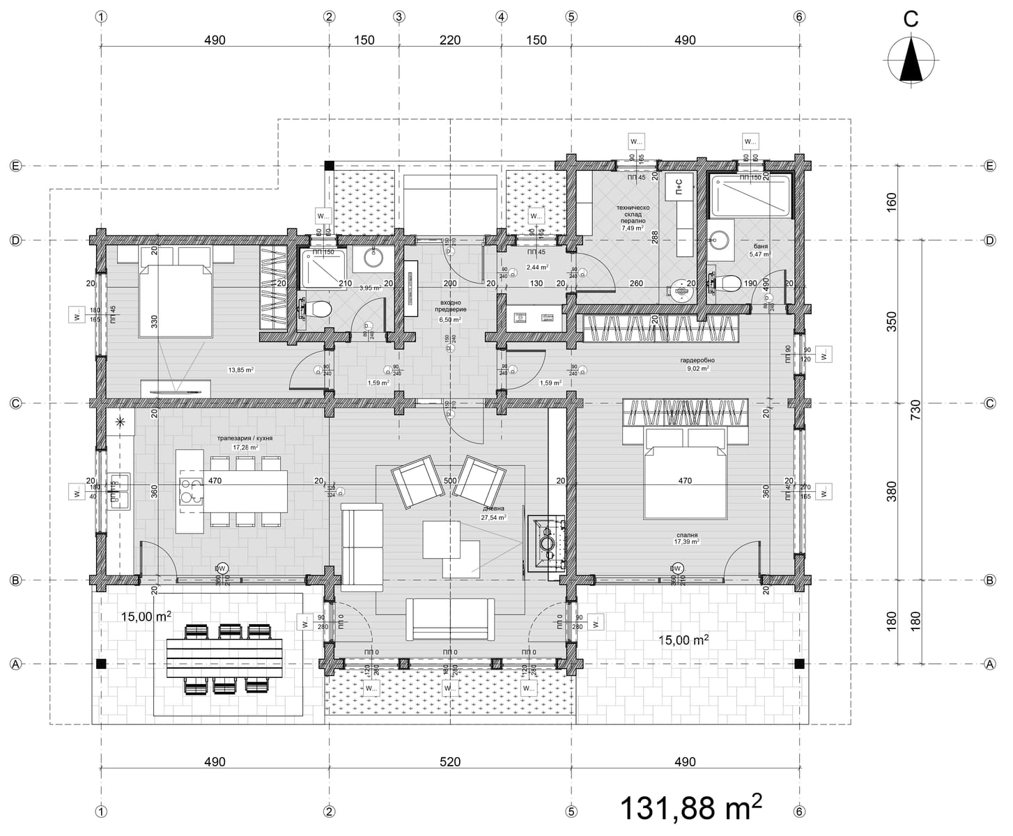
Тази красива дървена сглобяема къща предлага 131,88 кв.м жилищна площ и функционално оформление. Включва:

  • 2 спални
  • Отворена концепция за трапезария, кухня и дневна
  • Перално помещение
  • Гардеробна
  • 2 бани с тоалетни
  • Просторна веранда

Log Homes Pro

Присъединете се към света на Log Homes Pro и създайте своя уютен дом в сърцето на природата!