Начало / Всички проекти / Редови къщи за гости

Редови къщи за гости

Редови къщи за гости

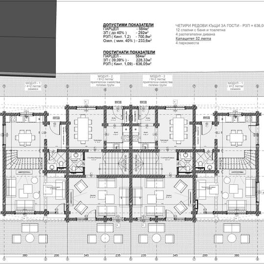
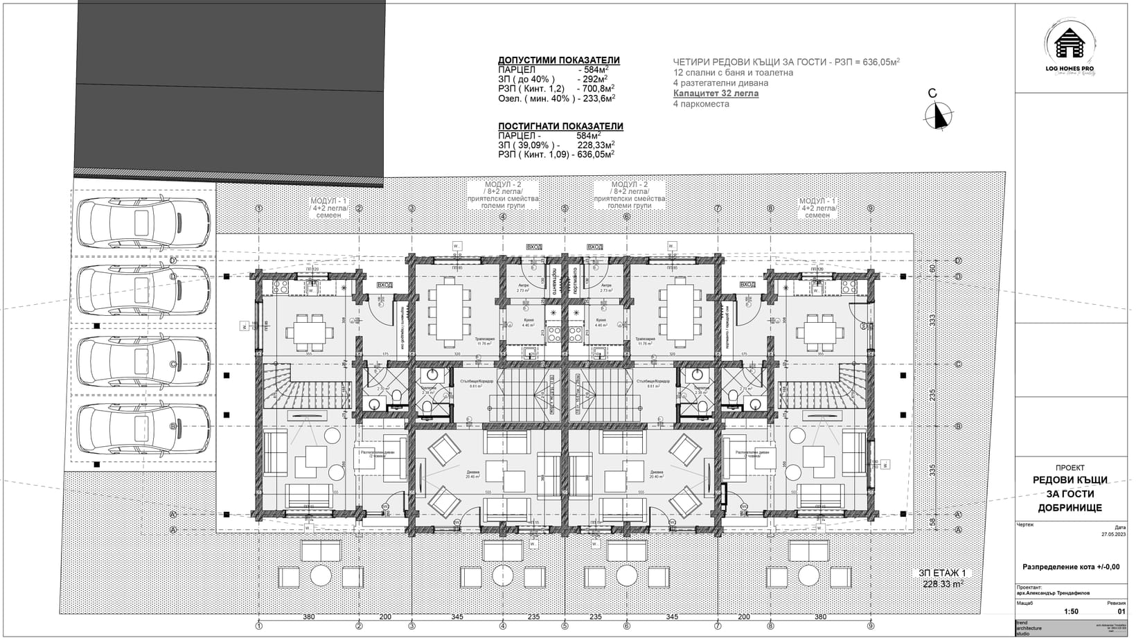
Четири редови сглобяеми къщи за гости, създадени с любов и внимание към детайла!

Разгъната застроена площ: 636,05 кв.м.

  • Етаж 1: 228,33 кв.м.
  • Етаж 2: 274,49 кв.м.
  • Етаж 3: 133,23 кв.м.

Капацитет: 32 легла

  • 12 спални с баня и тоалетна
  • 4 разтегателни дивана
  • Модул 1: Семеен тип - 4+2 легла
  • Модул 2: За приятелски семейства - 8+2 легла

Log Homes Pro

Присъединете се към света на Log Homes Pro и създайте своя уютен дом в сърцето на природата!